1/3
Office

Office To Let Hebden Bridge

PROPERTY ID: 143334

PROPERTY TYPE

Office

STATUS

Available

SIZE

362-1,014 sq.ft

Key Features

NEWLY REFURBISHED SUITES
SUITABLE FOR USES FALLING UNDER USE CLASS E
RANGING FROM 362 SQ FT - 1,014 SQ FT
ON SITE CAR PARKING

Property Details

The property is located along Hangingroyd Lane opposite the Market Place car park opposite Valley Road in the centre of Hebden Bridge. Both the A646 Burnley Road and the local train station which lies on the Manchester/Leeds line are within five minutes walking distance. Hebden Bridge itself is a popular tourist destination and lies approximately 7 miles west of Halifax Town Centre alongside the Rochdale Canal and River Calder.

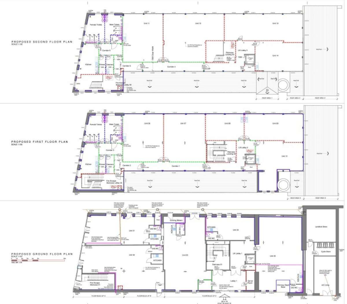
Burlees House Is A Newly Redeveloped Property In The Heart Of Hebden Bridge, Set Over Three Floors Offering Suites Ranging From 362 Sq Ft - 1,014 Sq Ft.
The Suites Are Considered To Be Suitable For A Variety Of Uses Falling Under Use Class E To Include Offices, Leisure Uses, Yoga Studio, Treatment Rooms Etc. And Are Accessed Via The Car Park Along Bond Street. Burlees House Benefits From Having On Site Car Parking With Electric Car Charging Points, 24 Hour Access, Heating/cooling Systems, Perimeter Trunking, Cctv To Cover The Car Park And Communal Areas, Communal Kitchen, W/c And Shower Facilities.
The Second Floor Suites Offer Views Across Hebden Bridge.
Available From November 2025.

Mains Services Connected To The Premises Include Electricity, Water And Drainage. Please Note These Services Have Not Been Tried Or Tested And Any Interested Parties Are Advised To Satisfy Themselves As To Suitability And Condition.

Cgi Images Are For Indicative Purposes Only.

About the Agent

Walker Singleton

See Agent's Other Properties

Office Unit

Starting From £7,240 / pa
£603 / month

Burlees House,Hangingroyd Lane, Hebden Bridge, HX7 7DD
Office - Available
362-1,014 sq ft
34-94 sqm
Show phone number

Enquiry Form

Boxpod will only use your details to send an enquiry to the advertiser and prompt a response. By clicking the Send Enquiry button, you agree to Boxpod's Privacy Policy Please wait for a response. It may take several seconds.

Similar to this property

To Let
£796 / month

Hebden Bridge, HX7 7DD

Office

To Let
£605 / month

Hebden Bridge, HX7 7DD

Office

To Let
£990 / month

Hebden Bridge, HX7 7DD

Office

To Let
£300 / month

Hebden Bridge, HX7 8LN

Office

To Let
£1495 / month

Hebden Bridge, HX7 5HZ

Office

To Let
£850 / month

Hebden Bridge, HX7 5HZ

Office

To Let
£475 / month

Hebden Bridge, HX7 5HZ

Office

To Let
£565 / month

Hebden Bridge, HX7 5TT

Office

To Let
£295 / month

Hebden Bridge, HX7 5TT

Office

To Let
£360 / month

Hebden Bridge, HX7 5TT

Office

To Let
£2083 / month

Halifax, HX3 5NS

Office

To Let
Starting From £186 / month

Halifax, HX2 8DB

Office

To Let
£300 / month

Halifax, HX2 8DB

Office

To Let
£175 / month

Halifax, HX2 8DB

Office

To Buy
£270000 Freehold

Halifax, HX1 3NS

Office

To Let
Starting From £150 / month

Halifax, HX3 6SN

Office

To Let
£667 / month

Halifax, HX1 3JL

Office

To Let
£1667 / month

Halifax, HX1 3ND

Office

To Let
Starting From £224 / month

Halifax, HX1 5ER

Office

To Let
£2474 / month

Halifax, HX1 5ER

Office

To Let
£855 / month

Halifax, HX1 5ER

Office

To Let
£278 / month

Halifax, HX1 5ER

Office

To Let
£1000 / month

Halifax, HX1 5BD

Office

To Let
£667 / month

Halifax, HX1 5BD

Office

To Let
£500 / month

Halifax, HX1 5BD

Office

To Let
£1840 / month

Halifax, HX3 5AX

Office

To Let
£1500 / month

Halifax, HX3 5WQ

Office

To Let
POA

Halifax, HX3 5AX

Office

To Let
POA

Halifax, HX3 5AX

Office

To Let
POA

Halifax, HX3 5AX

Office

To Let
POA

Halifax, HX3 5AX

Office

To Let
POA

Halifax, HX3 5AX

Office

To Let
POA

Halifax, HX3 5AX

Office

To Let
Starting From £439 / month

Halifax, HX3 5AX

Office

To Let
Starting From £150 / month

Halifax, HX3 5AX

Office

To Let
POA

Halifax, HX3 5AX

Office

To Let
£615 / month

Halifax, HX3 5AX

Office

To Let
Starting From £231 / month

Halifax, HX3 5AX

Office

To Let
POA

Halifax, HX3 5AX

Office

To Let
POA

Halifax, HX3 5AX

Office

To Let
POA

Halifax, HX3 5AX

Office

To Let
£1380 / month

Halifax, HX3 5AX

Office

To Let
POA

Halifax, HX3 5AX

Office

To Let
POA

Halifax, HX3 5AX

Office

To Buy
£135000 Freehold

Halifax, HX1 5SU

Office

To Buy
£60000 Freehold

Halifax, HX1 5AE

Office

To Buy
£200000 Freehold

Halifax, HX1 2EG

Office

To Let
POA

Halifax, HX3 5WP

Office

To Let
Starting From £254 / month

Halifax, HX3 5WP

Office

To Let
POA

Halifax, HX1 2AN

Office

To Buy
£425000 Freehold

Halifax, HX1 2AQ

Office

To Let
POA

Halifax, HX1 2QR

Office

To Let
Starting From £508 / month

Halifax, HX1 2QR

Office

To Buy
£150000 Freehold

Halifax, HX1 1YH

Office

To Let
£2323 / month

Halifax, HX1 2AF

Office

To Let
£3333 / month

Halifax, HX1 1XF

Office

To Let
POA

Halifax, HX1 2AF

Office

To Let
POA

Halifax, HX1 1BE

Office

To Let
£2083 / month

Halifax, HX1 1TH

Office

To Let
Starting From £5241 / month

Halifax, HX1 1UN

Office

To Let
£1667 / month

Halifax, HX1 1DL

Office

To Let
£708 / month

Halifax, HX1 1DU

Office

To Let
£1250 / month

Halifax, HX1 1DJ

Office

To Let
Starting From £1501 / month

Halifax, HX1 2HX

Office

To Let
Starting From £1368 / month

Halifax, HX1 2HX

Office

To Buy
£260000 Freehold

Halifax, HX1 2HX

Office

To Let
£1333 / month

Halifax, HX1 1PU

Office

To Let
£7132 / month

Cambridge, CB24 2HY

Office

To Let
£1875 / month

Halifax, HX1 1QE

Office

To Let
POA

Halifax, HX1 1QE

Office

To Let
POA

Halifax, HX1 1QE

Office

To Buy
POA

Halifax, HX1 1QE

Office

To Let
POA

Halifax, HX1 1QE

Office

To Let
£875 / month

Halifax, HX1 1SP

Office

To Let
Starting From £291 / month

Halifax, HX3 9ET

Office

To Let
Starting From £145 / month

Halifax, HX4 8NF

Office

To Let
£1375 / month

Bradford, BD13 1FF

Office

To Let
£817 / month

Northowram, HX3 7HR

Office

To Let
Starting From £95 / month

Halifax, HX3 9RG

Office

To Let
Starting From £288 / month

Bradford, BD13 1DS

Office

To Let
£646 / month

Elland, HX5 9HJ

Office

To Let
£792 / month

Bradford, BD14 6RF

Office

To Let
£458 / month

Bradford, BD14 6RF

Office

To Let
£1458 / month

Elland, HX5 0BW

Office

To Let
£350 / month

Halifax, HX5 0AB

Office

To Let
Starting From £400 / month

Halifax, HX3 8EN

Office

To Buy
£350000 Freehold

Elland, HX5 0JH

Office

To Buy
£750000 Freehold

Lowfields Business Park, HX5 9DX

Office

To Let
£5083 / month

Lowfields Business Park, HX5 9DX

Office

To Let
£2350 / month

Elland, HX5 9DN

Office

To Buy
£380000 Freehold

Elland, HX5 9AT

Office

To Let
£1800 / month

Elland, HX5 9AF

Office

To Let
£1667 / month

Halifax, HX5 0EE

Office

To Let
POA

Rochdale, OL12 0AA

Office

To Let
£2396 / month

Brighouse, HD6 4AB

Office

To Let
POA

Brighouse, HD6 4AB

Office

To Let
£3341 / month

Brighouse, HD6 4AB

Office

To Let
POA

Bingley, BD16 1PE

Office

To Let
POA

Bingley, BD16 1PE

Office

To Let
£1833 / month

Brighouse, HD6 1JN

Office