







Office To Let Halifax
PROPERTY ID: 133067
PROPERTY TYPE
Office
STATUS
Available
SIZE
1,991 sq.ft
Key Features
Property Details
The property is accessed from Newcombe Street and is situated on Rosemount Estate, a highly accessible employment site close to Elland Town Centre being well positioned to accommodate local and national businesses in an extremely prominent location off the B6114, one mile from junction 24 of the M62 between Huddersfield and Halifax. Leeds City Centre is approximately 15 miles distant with Manchester City Centre being within 25 miles distant.
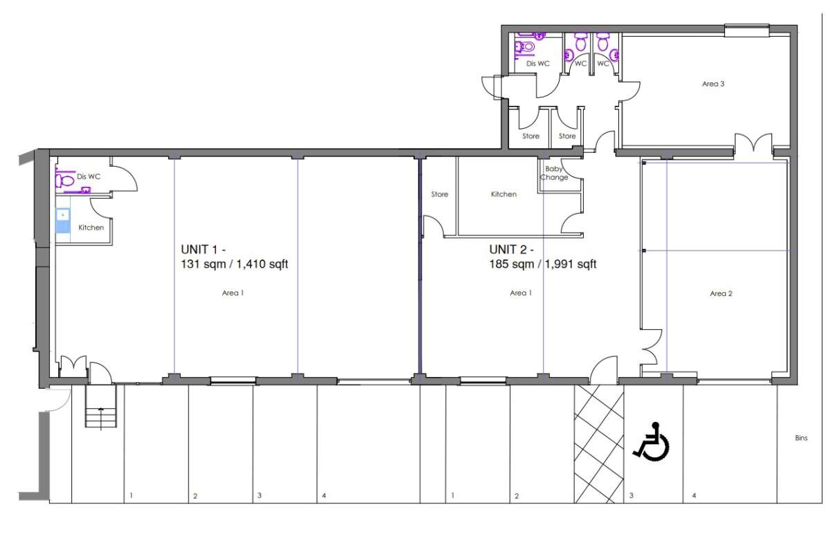
The Property Comprises A Single Storey Ground Floor Unit Situated On Rosemount Estate With Access From Newcombe Street, Elland. The Property Is Well Presented And Has The Benefit Of Having Open Plan Accommodation On Entering With Two Separate Meeting Rooms/offices, Large Kitchen, Relevant Wc Facilities To Include A Separate Disabled Wc, Baby Change And Ancillary Stores. Heating Is Provided By Way Of Gas Central Heating. Externally There Are 4 Parking Bays Which Includes 1 Disabled Parking Bay, With Further Parking Available On The Adjoining Rosemount Estate By Agreement.
The Property Has Planning Permission For Uses Falling Under Use Class E (c-g).
Rosemount Estate
Rosemount Estate Is A Secure Well-regarded, Privately Owned And Managed Industrial Estate And Is Home To A Range Of Industrial, Manufacturing And Office Tenants. The Estate Is Within Walking Distance Of Elland Town Centre Where A Range Of Amenities Are Available. Please See Www.rosemountestates.co.uk For Further Information And Details Of Other Available Properties.
Mains Services Connected To The Premises Include Electricity, Gas, Water And Drainage. Please Note These Services Have Not Been Tried Or Tested And Any Interested Parties Are Advised To Satisfy Themselves As To Suitability And Condition.