Retail/Shop To Let Or For Sale, Saltcoats
4 photos
Property ID: 152583
£1,000 / month
£12,000 pa
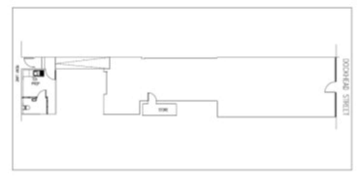
82 Dockhead Street, Saltcoats, KA21 5EL
Type
Retail/Shop
Status
Available
Size
1,262 sq ft
Key Features
- Prominent high street location
- Full retail fit out
- Potential for alternative restaurant use subject to consents
- Potential for 100% small rates relief
- 117.28 sq m (1,262 sq ft)
Property Details
Saltcoats has a resident population of 12,165 persons (Census 2022) and serves as the main retail focus for the towns of Stevenston and Ardrossan. The town has a main line railway station connecting Saltcoats to Largs, Ardrossan, Ayr and Glasgow and a local bus service in all directions. Prestwick International Airport is situated approximately 14 miles to the south via the A78 and A77.
Situated on the south side of Dockhead Street between the junction of Windmill Street to the West and Victoria Place to the east, bound by Dockhead Place to the rear.
The surrounding area is of mixed commercial and residential use, with commercial occupiers including Costa Coffee, Boots, New Look, Betfred and Ramsdens.
The Subjects Occupy A Terraced Position And Comprises The Ground Floor Of A Three Storey And Attic Tenemental Building Surmounted By A Pitched Roof Clad In Tile, Constructed Circa 1900s. There Are Single Storey Rear Extensions, Surmounted By A Pitched And Flat Roof. The Upper Floors Of The Three Storey Section Are In Residential Use And Are Outwith The Subjects.
The Premises Are Accessed Via A Central Glazed Entrance Door And Double Frontage From Dockhead Street Which Benefits From An Electric Security Roller Shutter And A Rear Service Access/fire Escape Leading Onto Dockhead Place Which Also Benefits From A Steel Security Door.
The Premises Internally Comprises Sales, Storage, Staff, Tea Preparation Area And Wc.
Prominent High Street Location
Full Retail Fit Out
Potential For Alternative Restaurant Use Subject To Consents
Potential For 100% Small Rates Relief
117.28 Sq M (1,262 Sq Ft)
Situated on the south side of Dockhead Street between the junction of Windmill Street to the West and Victoria Place to the east, bound by Dockhead Place to the rear.
The surrounding area is of mixed commercial and residential use, with commercial occupiers including Costa Coffee, Boots, New Look, Betfred and Ramsdens.
The Subjects Occupy A Terraced Position And Comprises The Ground Floor Of A Three Storey And Attic Tenemental Building Surmounted By A Pitched Roof Clad In Tile, Constructed Circa 1900s. There Are Single Storey Rear Extensions, Surmounted By A Pitched And Flat Roof. The Upper Floors Of The Three Storey Section Are In Residential Use And Are Outwith The Subjects.
The Premises Are Accessed Via A Central Glazed Entrance Door And Double Frontage From Dockhead Street Which Benefits From An Electric Security Roller Shutter And A Rear Service Access/fire Escape Leading Onto Dockhead Place Which Also Benefits From A Steel Security Door.
The Premises Internally Comprises Sales, Storage, Staff, Tea Preparation Area And Wc.
Prominent High Street Location
Full Retail Fit Out
Potential For Alternative Restaurant Use Subject To Consents
Potential For 100% Small Rates Relief
117.28 Sq M (1,262 Sq Ft)
Location
Graham & Sibbald-Kilmarnock
View all properties
Make an Enquiry
Graham & Sibbald-Kilmarnock