Office To Let, Perth

Office in Perth
Office in Perth
Office in Perth
Office in Perth
£458 / month
£5,500 pa

2 Dundee Road, Perth, PH2 7DW

Type Office
Status Under Offer
Size 400 - 1,413 sq ft

Key Features

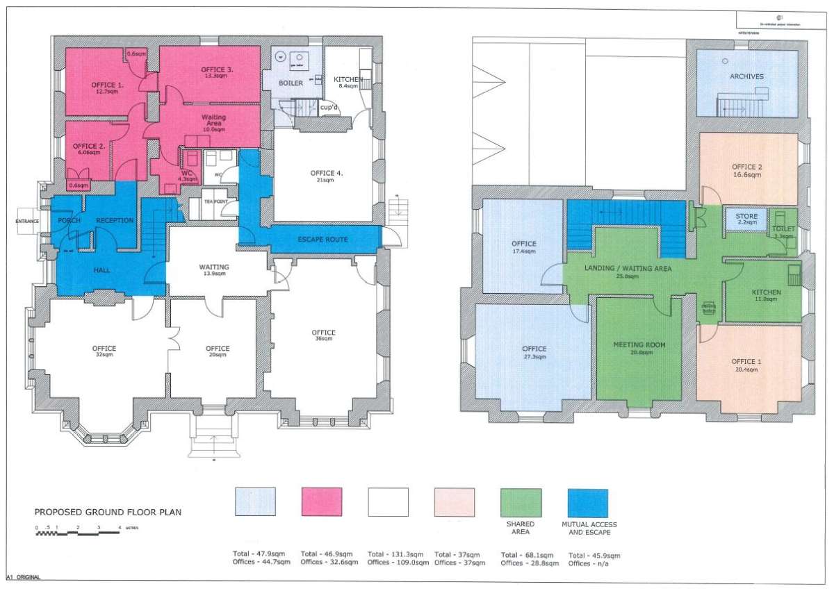
  • Offices from 37 sq m
  • Excellent parking provision
  • Great accessibility and close to city centre
  • Quality working environment
  • Flexible lease arrangements
  • May qualify for 100% rates relief

Property Details

Perth is a city in central Scotland, on the banks of the River Tay. It is the administrative centre of Perth and Kinross Council area and the historic county town of Perthshire. As of mid- 2020 the estimated population was 47,350 persons.

The subjects occupy an elevated position at the corner of Bowerswell Road and Dundee Road overlooking Perth city and the River Tay.

Traditional Villa Set In Substantial Grounds With Abundant Carparking.

Accommodation Over Ground And First Floors Available On Flexible/attractive Terms With Potential Splits As Shown Below.

Shared Toilet, Kitchen Facilities And Meeting Room.
Advertisement
Graham & Sibbald-Perth
Graham & Sibbald-Perth View all properties
Office To Let, Perth
£458 / month
£5,500 pa

2 Dundee Road, Perth, PH2 7DW

Office · Under Offer · 400 - 1,413 sq ft

Property ID: 149986

Send Enquiry
Graham & Sibbald-Perth
Graham & Sibbald-Perth View all properties
Advertisement

Make an Enquiry

Boxpod will only use your details to send an enquiry to the advertiser and prompt a response. By clicking Send Enquiry, you agree to Boxpod's Privacy Policy.

Make an Enquiry

Graham & Sibbald-Perth
Graham & Sibbald-Perth

Boxpod will only use your details to send an enquiry to the advertiser and prompt a response. By clicking Send Enquiry, you agree to Boxpod's Privacy Policy.

Call