Retail/Shop To Let, Newark
4 photos
£833 / month
£10,000 pa
Unit 3 - 32 Stodman Street, Newark, NG24 1AW
Type
Retail/Shop
Status
Available
Size
685 sq ft
Key Features
- Town centre location
- New development
- Close to local train station and bus station
- Designed with sustainability and energy efficiency in mind
- Flexible lease terms
- Period, well known building with many original features
Property Details
Available July 2026!
Set in the former Marks and Spencer's building on Stodman Street, Newark right in the heart of the town centre
Now is the time to express your interest and get involved in unit specifications.
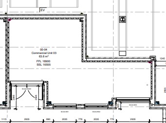
Welcome to Unit 3, a brand-new commercial space located in the centre of Newark‘s vibrant town hub. With 63.6 m² of high-quality, purpose-built retail area, this unit offers an exceptional opportunity for businesses looking to thrive in a bustling, well-connected location.
Key Features
ðŸ™ï¸ Central location with excellent visibility and footfall
🆕 Newly constructed to modern standards
🧱 Spacious layout ideal for retail, or service-based businesses or health/beauty
ðŸš¶â™€ï¸ Surrounded by complementary commercial units and public amenities
🚲 Access to cycle storage and nearby transport links
â™»ï¸ Designed with sustainability and energy efficiency in mind
Whether you're launching a flagship store or expanding your brand presence, Unit 4 offers the perfect platform to grow in a thriving community.
📞 Contact us today to arrange a viewing or register your interest!
Set in the former Marks and Spencer's building on Stodman Street, Newark right in the heart of the town centre
Now is the time to express your interest and get involved in unit specifications.
Welcome to Unit 3, a brand-new commercial space located in the centre of Newark‘s vibrant town hub. With 63.6 m² of high-quality, purpose-built retail area, this unit offers an exceptional opportunity for businesses looking to thrive in a bustling, well-connected location.
Key Features
ðŸ™ï¸ Central location with excellent visibility and footfall
🆕 Newly constructed to modern standards
🧱 Spacious layout ideal for retail, or service-based businesses or health/beauty
ðŸš¶â™€ï¸ Surrounded by complementary commercial units and public amenities
🚲 Access to cycle storage and nearby transport links
â™»ï¸ Designed with sustainability and energy efficiency in mind
Whether you're launching a flagship store or expanding your brand presence, Unit 4 offers the perfect platform to grow in a thriving community.
📞 Contact us today to arrange a viewing or register your interest!
Location
Advertisement
Newark and Sherwood District Council
View all properties
Make an Enquiry
Newark and Sherwood District Council