1/3
Land

Land For Sale Inverness

PROPERTY ID: 144381

PROPERTY TYPE

Land

STATUS

Available

SIZE

0 sq.ft

Key Features

Over 32 acres available
Ideal for Industrial, office or dedicated yard space
Located within the Cromarty Firth Green Freeport

Property Details

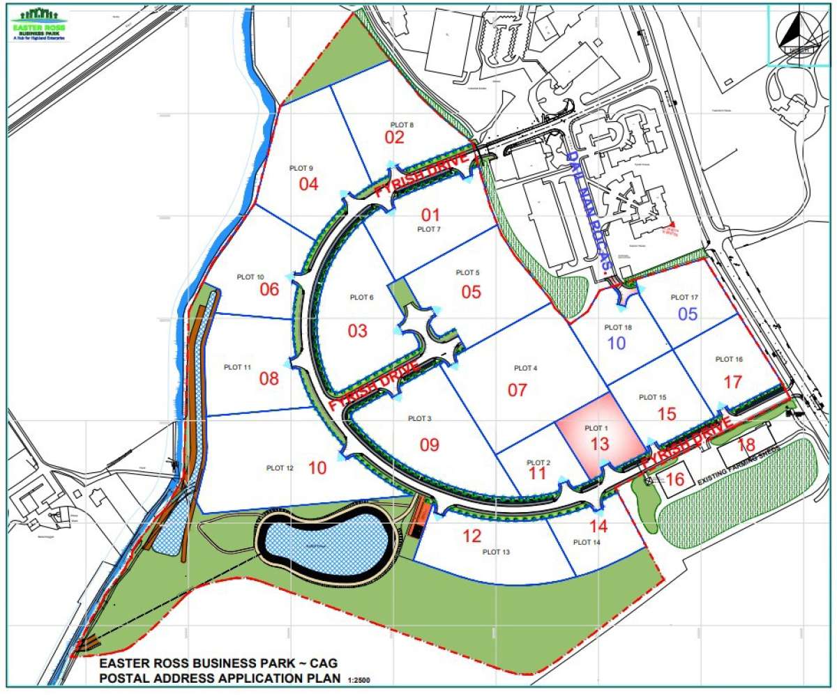
The Easter Ross Business Park is located in the Inverness and Cromarty Firth Green Freeport.

Over 32 Acres Of Flexible Development Space, Ideal For Industrial Use, Office Space, Or Dedicated Yard Space - Or Even A Combination Of All Three. Zoned Areas Ready For Development:- Flexible Unit Sizes From Small To Extra-large- Custom Plots, Including Two Acres Or More- Design And Fit-out To Suit Your Business Needs. Join A Thriving Business Community Located In The Inverness And Cromarty Firth Green Freeport.

The Easter Ross Business Park Is Located In The Inverness And Cromarty Firth Green Freeport.

About the Agent

Graham & Sibbald-Inverness

See Agent's Other Properties

Land

POA

Land Easter Ross Business Park, Inverness, IV17 0AH
Land - Available
0 sq ft
0 sqm
Show phone number

Enquiry Form

Boxpod will only use your details to send an enquiry to the advertiser and prompt a response. By clicking the Send Enquiry button, you agree to Boxpod's Privacy Policy Please wait for a response. It may take several seconds.

Similar to this property

To Buy
£30000 Freehold

Inverness, IV15 9XH

Land

To Let
POA

Inverness, IV2 7JB

Land

To Buy
POA

Inverness, IV2 3SY

Land

To Buy
POA

Inverness, IV2 5GH

Land

To Buy
POA

Inverness, IV2 6AR

Land

To Buy
POA

Inverness, IV2 5BD

Land