Office To Let, Doncaster

Office in Doncaster
Office in Doncaster
Office in Doncaster
Office in Doncaster

Property ID: 142705

£425 / month
£5,100 pa

Saddlers House,4-6 South Parade, Doncaster, DN10 6JH

Type Office
Status Available
Size 116 - 199 sq ft

Key Features

  • Excellent location
  • Beautiful market town
  • Well presented
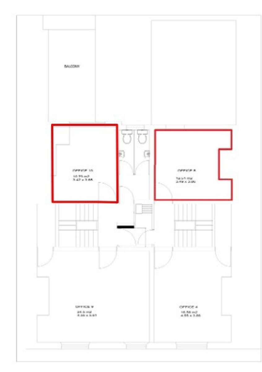
  • Office 5 - 12.51 m2 (135 ft2). £425 per month
  • Office 8 - 18.45 m2 (199 ft2). £495 per month
  • Office 10 - 10.79 m2 (116 ft2). £425 pcm - has access to roof terrace
  • Rent includes utilities
  • Wifi available

Property Details

This Attractive Grade Ii Listed Building Is Sub Divided To Form A Number Of Office Suites. The Offices Are Very Well Presented. There Are Shared Kitchen And Wc Facilities On The Ground And First Floor. Limited Parking Is Available On Site, Street And Public Parking Available Nearby.

Note Craven Wildsmith Have Not Measured The Rooms

Office 5- 12.51 M2 (135 Ft2) Located On The First Floor.
Office 8- 18.45 M2 (199 Ft2) Located On The Ground Floor.
Office 10 - 10.79 M2 (116 Ft2) Located On The First Floor, Has Access To A Roof Terrace
Craven Wildsmith Ltd
Craven Wildsmith Ltd View all properties

Property ID: 142705

Office To Let, Doncaster
£425 / month
£5,100 pa

Saddlers House,4-6 South Parade, Doncaster, DN10 6JH

Office · Available · 116 - 199 sq ft

Send Enquiry
Craven Wildsmith Ltd
Craven Wildsmith Ltd View all properties

Make an Enquiry

Boxpod will only use your details to send an enquiry to the advertiser and prompt a response. By clicking Send Enquiry, you agree to Boxpod's Privacy Policy.

Make an Enquiry

Craven Wildsmith Ltd
Craven Wildsmith Ltd

Boxpod will only use your details to send an enquiry to the advertiser and prompt a response. By clicking Send Enquiry, you agree to Boxpod's Privacy Policy.

Call