







Retail/Shop To Let Grimsby
PROPERTY ID: 136060
PROPERTY TYPE
Retail/Shop
STATUS
Under Offer
SIZE
1,050-3,358 sq.ft
Key Features
Property Details
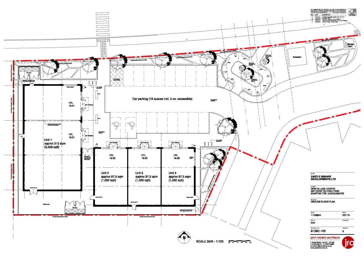
A New Neighbourhood Scheme Serving Scartho Top Grimsby Town Extension, Which Will Provide Over 2,000 New Homes On Completion.
The Property Comprises Four Retail Units, With Three Of These Extending To Around 97.50 Sq M (1,050 Sq Ft) And The Fourth Larger Unit To Around 312 Sq M (3,358 Sq Ft).
The Property Sits In The Heart Of The Neighbourhood Centre For The Scartho Top Development, With An Aldi Supermarket Sitting Adjacent, Together With A New Nursery School And Doctors Surgery, Both Of Which Are Currently Under Construction.
The Units Will Be Finished Off To An Enhanced Shell Specification With Shop Fronts And Services Connected To Each Unit, Ready For The Ingoing Occupiers To Fit Out.
The Units Should Be Available For Ingoing Occupiers By Early Summer 2025.