Retail/Shop To Let Tipton
PROPERTY ID: 135328
PROPERTY TYPE
Retail/Shop
STATUS
Available
SIZE
1,614 sq.ft
Key Features
Property Details
The property forms part of Tipton Centre which fronts the busy Owen Street and is situated a short walk from Tipton Train Station. Existing occupiers include Poundland, Bupa Dental Care and The West Bromwich Building Society. Tipton Centre is lies 1 mile north of Dudley and benefits from over 16,000 vehicle movements per day.
Location
The Property Forms Part Of Tipton Centre Which Fronts The Busy Owen Street And Is Situated A Short Walk From Tipton Train Station. Existing Occupiers Include Poundland, Bupa Dental Care And The West Bromwich Building Society. Tipton Centre Is Lies 1 Mile North Of Dudley And Benefits From Over 16,000 Vehicle Movements Per Day.
Description
Tipton Centre Compromises A Modern Community Centre That Consists Of 28 Retail Units, Along With First Floor Office Suites. The Centre Benefits From Generous Free Car Parking And A Central Square That Hosts A Weekly Market Along With Other Seasonal Events.
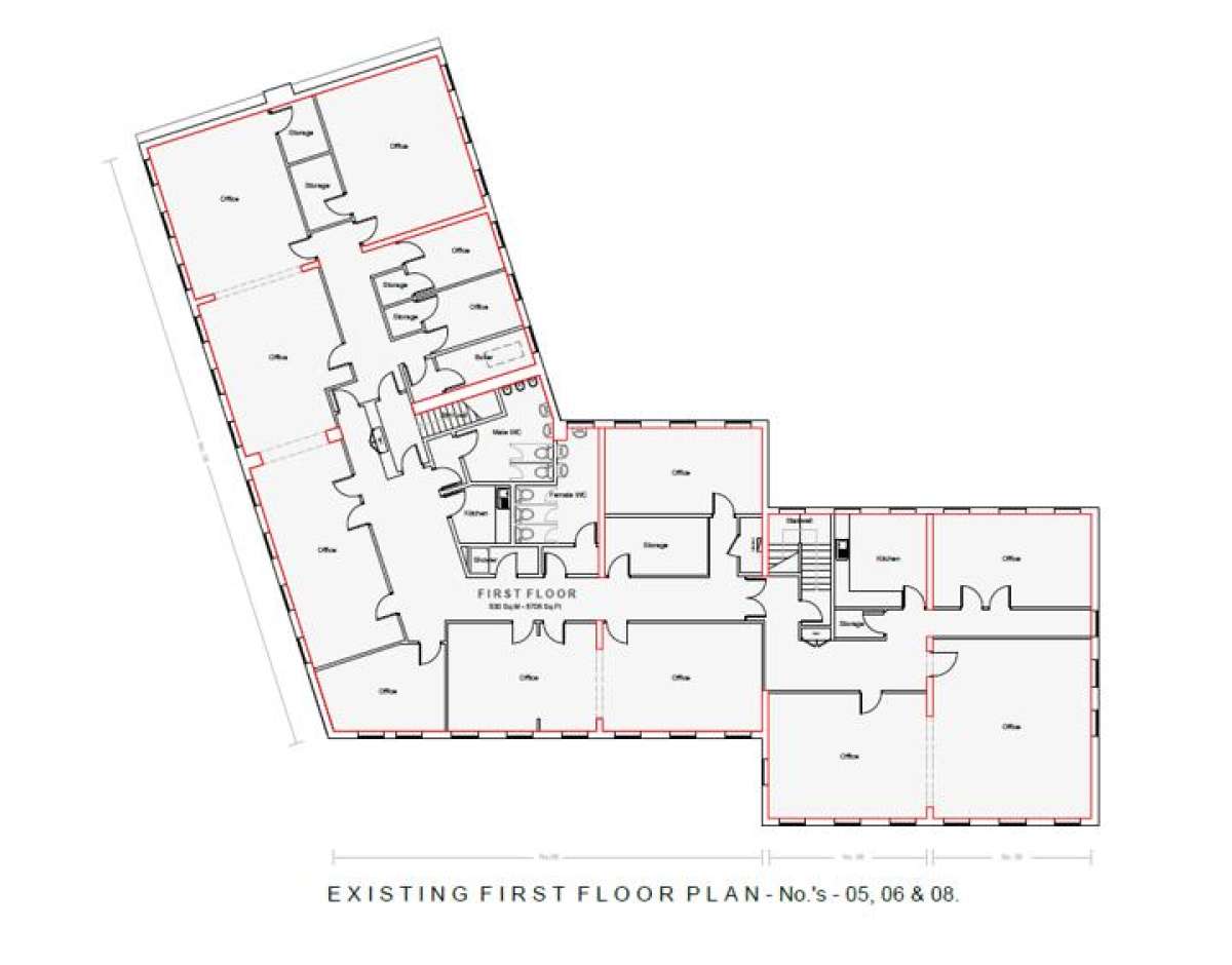
The Self Contained Premises Comprise Part Ground And First Floor Units That Offer Versatile Accommodation, Appropriate Staff Facilities And A Large Car Park To The Rear. Please Refer To The Attached, Existing Layout Plans.
The Premises May Be Suitable For Alternative Uses, Subject To Planning.
Tenure Comments
The Properties Are Available By Way Of New Effectively full Repairing And Insuring Leases For A Term Of Years To Be Agreed.
Epc
A Copy Of The Energy Performance Certificates Can Be Made Available Upon Request.
Insurance
An Annual Insurance Charge Of £1,645
Legal Costs
Each Party Will Be Responsible For Covering Their Own Legal Costs Incurred In The Transaction.
















































































































