1/4
Industrial Unit

Industrial Unit To Let Lincoln

PROPERTY ID: 147162

PROPERTY TYPE

Industrial Unit

STATUS

Available

SIZE

5,014 sq.ft

Key Features

Steel portal framed Warehouse/Industrial Unit with Offices.
Parking to the front and a fenced yard to the rear.
GIA from approx 5,014 sq ft (465.8 m2)
Unit to be made available by way of new effective FRI Lease
For a minimum term of 5 years.
Well located approx 0.6 miles from A46.

Property Details

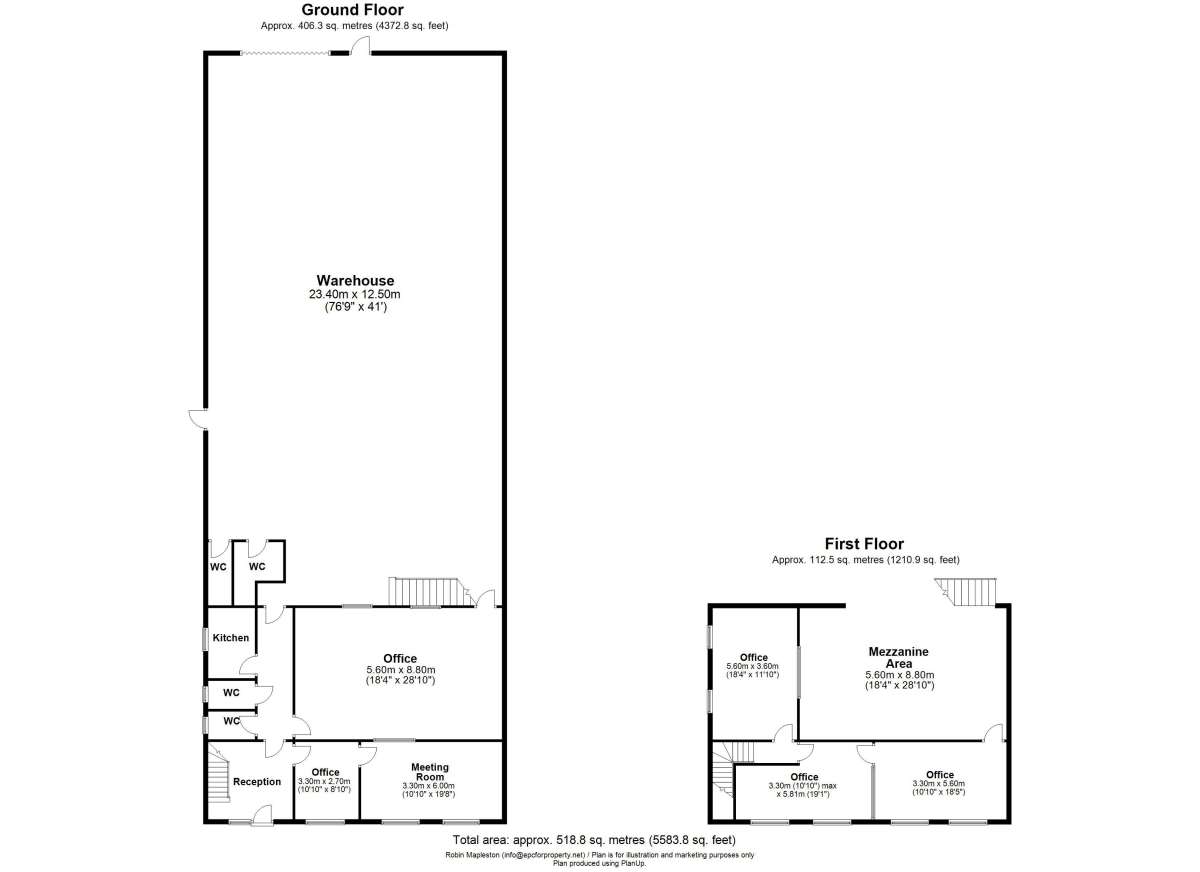
The property comprises a Warehouse/Industrial Unit with Offices to the front of steel frame construction with part brick walls covered with insulated cladding above and to the roof. The Office Space comprises an Entrance/Hallway, Reception Area, 2 Offices/Meeting Rooms, Kitchen and WC's on the Ground Floor with two Offices/Meeting rooms and a Mezzanine above. The Warehouse/Industrial Unit has an additional WC, electric roller shutter door, concrete flooring, LED lighting, 3 phase electricity supply and a minimum eaves height of approximately 5.4m and maximum ridge height of approximately 6.2m.

Externally there is parking to front for 4 cars and a fenced Yard to the rear.

Steel Portal Framed Warehouse/industrial Unit With Offices.

Parking To The Front And A Fenced Yard To The Rear.

Gia From Approx 5,014 Sq Ft (465.8 M2)

Unit To Be Made Available By Way Of New Effective Fri Lease

Warehouse/industrial Unit With Offices & Yard
Unit 1, Whisby Way, Lincoln Ln6 3lq
Rent: £40,000 P.a.x. Leasehold

Warehouse/industrial Unit With Offices & Yard
Unit 1, Whisby Way, Lincoln Ln6 3lq
Rent: £40,000 P.a.x. Leasehold

Detailed Description

The Property Comprises A Warehouse/industrial Unit With Offices To The Front Of Steel Frame Construction With Part Brick Walls Covered With Insulated Cladding Above And To The Roof. The Office Space Comprises An Entrance/hallway, Reception Area, 2 Offices/meeting Rooms, Kitchen And Wc's On The Ground Floor With Two Offices/meeting Rooms And A Mezzanine Above. The Warehouse/industrial Unit Has An Additional Wc, Electric Roller Shutter Door, Concrete Flooring, Led Lighting, 3 Phase Electricity Supply And A Minimum Eaves Height Of Approximately 5.4m And Maximum Ridge Height Of Approximately 6.2m.

Externally There Is Parking To Front For 4 Cars And A Fenced Yard To The Rear.

Location

Whisby Way Is Located Off Whisby Road Which Leads From The A46 Which Bypasses The City Of Lincoln To Doddington Road As Well As North Hykeham. The Surrounding Area Is Predominately Commercial In Nature And Home To Many Of The City's Manufacturing And Logistical Businesses

For A Minimum Term Of 5 Years.

Well Located Approx 0.6 Miles From A46.

About the Agent

Industrial Unit

£40,000 / pa
£3,333 / month

Unit 1,Whisby Way, Lincoln, LN6 3LQ
Industrial Unit - Available
5,014 sq ft
466 sqm
Show phone number

Enquiry Form

Boxpod will only use your details to send an enquiry to the advertiser and prompt a response. By clicking the Send Enquiry button, you agree to Boxpod's Privacy Policy Please wait for a response. It may take several seconds.

Similar to this property

To Let
£625 / month

Lincoln, LN6 3LQ

Industrial Unit

To Let
£625 / month

Lincoln, LN6 3LQ

Industrial Unit

To Let
Starting From £2500 / month

Lincoln, LN6 3LQ

Industrial Unit

To Let
£2042 / month

Lincoln, LN6 3AN

Industrial Unit

To Let

Lincoln, LN6 3RG

Industrial Unit

To Let
£1667 / month

Lincoln, LN6 3AJ

Industrial Unit

To Let
£583 / month

Lincoln, LN6 3AJ

Industrial Unit

To Buy
£3750000 Freehold

Lincoln, LN6 3QS

Industrial Unit

To Let
£663 / month

Lincoln, LN6 3RU

Industrial Unit

To Let
£1375 / month

Lincoln, LN6 3RU

Industrial Unit

To Let

Lincoln, LN6 3QY

Industrial Unit

To Let
Starting From £1337 / month

Lincoln, LN6 3AR

Industrial Unit

To Let

Lincoln, LN6 3JZ

Industrial Unit

To Let
£1500 / month

Lincoln, LN6 3JZ

Industrial Unit

To Let
POA

Lincoln, LN6 3LH

Industrial Unit

To Let
£17708 / month

Lincoln, LN6 3QZ

Industrial Unit

To Let
£7083 / month

Lincoln, LN6 9AP

Industrial Unit

To Let
Starting From £583 / month

Lincoln, LN6 3AE

Industrial Unit

To Let
£6667 / month

Thorpe-On-The-Hill, LN6 9BW

Industrial Unit

To Let
£792 / month

Lincoln, LN6 8RP

Industrial Unit

To Let
POA

Lincoln, LN6 9UH

Industrial Unit

To Let
POA

Lincoln, LN6 9UH

Industrial Unit

To Let
POA

Lincoln, LN6 9UH

Industrial Unit

To Let
Starting From £2250 / month

Lincoln, LN6 7RY

Industrial Unit

To Let
£1063 / month

Lincoln, LN6 7RY

Industrial Unit

To Let
£3542 / month

Lincoln, LN6 7UB

Industrial Unit

To Let
£3542 / month

Lincoln, LN6 7UB

Industrial Unit

To Let
£1208 / month

Lincoln, LN5 9FP

Industrial Unit

To Let
£1333 / month

Lincoln, LN6 7AA

Industrial Unit

To Let
£4583 / month

Lincoln, LN5 8EL

Industrial Unit

To Let
£2313 / month

Lincoln, LN5 8HE

Industrial Unit

To Let
£2688 / month

Lincoln, LN5 8HE

Industrial Unit

To Let
£4087 / month

Lincoln, LN5 8LQ

Industrial Unit

To Let
£667 / month

Lincoln, LN5 9QA

Industrial Unit

To Let
£4750 / month

Lincoln, LN5 8HJ

Industrial Unit

To Buy
£375000 Freehold

Lincoln, LN5 8LG

Industrial Unit

To Let
Starting From £709 / month

Lincoln, LN5 8LG

Industrial Unit

To Let
£2292 / month

Lincoln, LN5 8LG

Industrial Unit

To Let
POA

Lincoln, LN5 8LL

Industrial Unit

To Let
£1833 / month

Lincoln, LN5 9DY

Industrial Unit

To Let
£583 / month

Lincoln, LN2 5LN

Industrial Unit

To Let
£583 / month

Lincoln, LN2 5LN

Industrial Unit

To Let

Lincoln, LN1 2LR

Industrial Unit

To Let

Lincoln, LN1 2LR

Industrial Unit

To Let
£2125 / month

Lincoln, LN2 4DL

Industrial Unit

To Let
£1167 / month

Saxilby, LN1 2LR

Industrial Unit

To Let
POA

Lincoln, LN1 2GH

Industrial Unit

To Let
£2083 / month

Lincoln, LN1 2GH

Industrial Unit

To Let
POA

Lincoln, LN1 2GH

Industrial Unit

To Let
POA

Lincoln, LN1 2GH

Industrial Unit

To Let
Starting From £2500 / month

Lincoln, LN2 4ZS

Industrial Unit

To Let
£1800 / month

Lincoln, LN1 2GH

Industrial Unit

To Let
£1333 / month

Lincoln, LN2 4SY

Industrial Unit

To Let
£2667 / month

Lincoln, LN2 4HX

Industrial Unit

To Let
Starting From £833 / month

Lincoln, LN2 4LD

Industrial Unit

To Let
Starting From £583 / month

Lincoln, LN3 4NH

Industrial Unit

To Let
£833 / month

Lincoln, LN3 4NR

Industrial Unit

To Let
£833 / month

Lincoln, LN3 4NR

Industrial Unit

To Let
Starting From £833 / month

Lincoln, LN3 4NR

Industrial Unit

To Let
£833 / month

Lincoln, LN3 4NR

Industrial Unit

To Buy
£650000 Freehold

Lincoln, LN1 5AB

Industrial Unit

To Let
£833 / month

Lincoln, LN5 9LL

Industrial Unit

To Buy
£4000000 Freehold

Lincoln, LN1 2GH

Industrial Unit

To Let
Starting From £6529 / month

Lincoln, LN1 2GH

Industrial Unit

To Let
£583 / month

Metheringham, LN4 3HX

Industrial Unit

To Let
POA

Newark-On-Trent, NG24 2UA

Industrial Unit

To Let
POA

Retford, DN22 0TE

Industrial Unit

To Let
Starting From £1024 / month

West Firsby, LN8 2DL

Industrial Unit

To Let
£4800 / month

Retford, DN22 0LG

Industrial Unit

To Let
POA

Newark, NG24 2EG

Industrial Unit

To Let
£708 / month

Newark, NG24 2UD

Industrial Unit

To Let
POA

Newark, NG24 2FU

Industrial Unit

To Let
£708 / month

Newark-On-Trent, NG24 2UD

Industrial Unit

To Let
£800 / month

Newark, NG24 2UD

Industrial Unit

To Let
POA

Newark, NG24 2TT

Industrial Unit

To Let
POA

Newark, NG24 2TT

Industrial Unit

To Let
POA

Newark, NG24 2TT

Industrial Unit

To Let
POA

Newark, NG24 2TT

Industrial Unit

To Let
POA

Clipstone, NG21 9AP

Industrial Unit

To Buy
POA

Newark-On-Trent, NG24 3BU

Industrial Unit

To Let
Starting From £10047 / month

Tuxford, NG22 0PQ

Industrial Unit

To Let
£425 / month

Newark-On-Trent, NG24 3JP

Industrial Unit

To Let
£333 / month

Newark-On-Trent, NG24 3JP

Industrial Unit

To Let

Newark, NG24 3RR

Industrial Unit

To Let

Newark, NG24 3RR

Industrial Unit

To Let
£625 / month

Sleaford, NG34 9FR

Industrial Unit

To Let
£625 / month

Sleaford, NG34 9FR

Industrial Unit

To Let
POA

Newark, NG22 0PG

Industrial Unit

To Buy
£189950 Freehold

Gainsborough, DN21 1FQ

Industrial Unit

To Buy
£184950 Freehold

Gainsborough, DN21 1FQ

Industrial Unit

To Buy
£299950 Freehold

Gainsborough, DN21 1FQ

Industrial Unit

To Buy
£299950 Freehold

Gainsborough, DN21 1FQ

Industrial Unit

To Let
£1250 / month

Newark, NG24 3SD

Industrial Unit

To Let
£875 / month

Gainsborough, DN21 1RZ

Industrial Unit

To Let
£3000 / month

Gainsborough, DN21 1RZ

Industrial Unit

To Let
£2208 / month

Gainsborough, DN21 1RZ

Industrial Unit

To Let
£29521 / month

Gainsborough, DN21 1QT

Industrial Unit

To Let
POA

Gainsborough, DN21 1QT

Industrial Unit

To Let
POA

Gainsborough, DN21 1QT

Industrial Unit

To Let
£1250 / month

Gainsborough, DN21 1QG

Industrial Unit