







Industrial Unit
Industrial Unit For Sale Maidenhead
PROPERTY ID: 146393
PROPERTY TYPE
Industrial Unit
STATUS
Available
SIZE
5,540 sq.ft
Key Features
Full refurbishment in 2023
Passing rental income of £58,194 per annum
Reversionary income of £79,155 upon being fully let
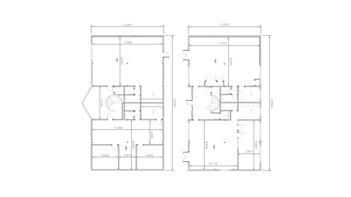
Building consists of 4 suites, with Kitchens & WC's
Yard with 23 Parking Spaces
High quality WCs & kitchens, including all white goods
WAULT of 3.7 years
Low capital value of £117 per sq ft
Property Details
Opportunity To Acquire A Modern, Detached Office Building Just A Short Walk From Basingstoke Town Centre.
Recently Refurbished Throughout To A High Standard, This Self-contained Property Is Available On A Long Leasehold Basis And Features A Mezzanine At The Front Of The Unit. The Site Benefits From A Generous Front Yard, Providing Parking For Up To 23 Cars And A Dedicated Outdoor Seating Area - Ideal For Staff And Visitors.
About the Agent
LSH-London E1
See Agent's Other PropertiesIndustrial Unit
£650,000 Freehold
5 Cartel Business Centre,Stroudley Road, Maidenhead, RG24 8FW
Industrial Unit -
Available
5,540 sq ft
515 sqm
Show phone number