1/4
Industrial Unit

Industrial Unit To Let Or For Sale Wrexham

PROPERTY ID: 143528

PROPERTY TYPE

Industrial Unit

STATUS

Available

SIZE

15,820-43,420 sq.ft

Key Features

Detached Industrial Warehouse House
Large Services Yards
Excellent Transport Links

Property Details

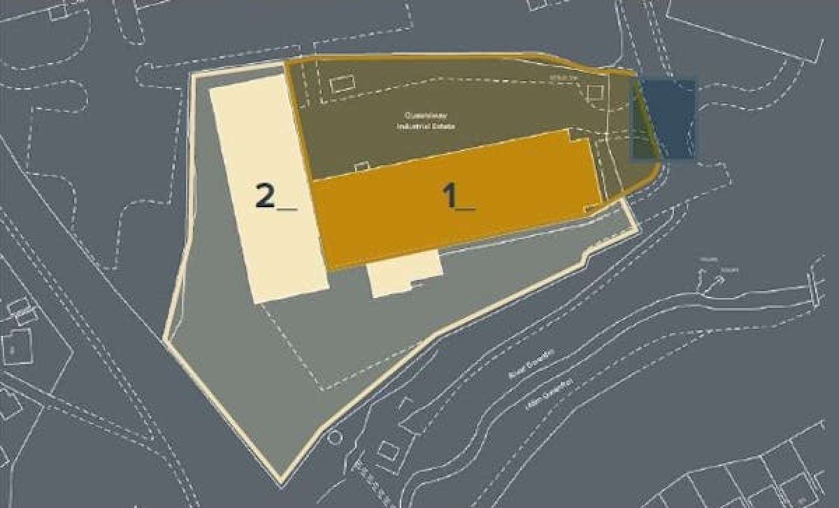
The Property Comprises A Detached Industrial / Warehouse Building On A Large Self Contained Site, Which Can Be Made Available As Two Separate Units Or As A Whole.

The Buildings Are Of Steel Frame Construction With Internal Blockwork And External Full Height Profiled Metal Cladding.

The Industrial / Warehouse Space Benefits From Good Height Clearance Under A Pitched Roof With Translucent Rooflights.

The Office Accommodation Benefits From A Flat Felt Roof.

The Property Is Served By Two Separate Large And Secure Service Yards, One To Each Side Of The Buildings. Both Service Yards Are Generally Concrete Surfaced To A Good Standard.

The Site Is Secured With Palisade Fencing And Gates.

Large Secure Service Yards.
Large Electric, Gas And Water Supplies Available.
Ground And First Floor Office / Amenity Space.
Town Centre Fringe.
35% Site Coverage.
Opportunity To Purchase.
Available As A Whole Unit Or As Two Separate Self-contained Units.

About the Agent

Fisher German LLP- Manchester

See Agent's Other Properties

Industrial Unit

Starting From £63,280 / pa
£5,273 / month

Queensway, Wrexham, LL13 8YR
Industrial Unit - Available
15,820-43,420 sq ft
1,470-4,034 sqm
Show phone number

Enquiry Form

Boxpod will only use your details to send an enquiry to the advertiser and prompt a response. By clicking the Send Enquiry button, you agree to Boxpod's Privacy Policy Please wait for a response. It may take several seconds.

Similar to this property

To Let
POA

Wrexham, LL13 9UT

Industrial Unit

To Let
£2125 / month

Wrexham, LL13 0SL

Industrial Unit

To Let
£5000 / month

Wrexham, LL14 6HA

Industrial Unit

To Let
£2916 / month

Wrexham, LL14 6HA

Industrial Unit

To Let
£14500 / month

Wrexham, LL14 6HA

Industrial Unit

To Let
£1000 / month

Wrexham, LL14 6HA

Industrial Unit

To Let
£1375 / month

Oswestry, SY10 7HB

Industrial Unit

To Let
POA

Wrexham, LL14 5DG

Industrial Unit

To Let
£3208 / month

Chester, CH4 8RJ

Industrial Unit

To Let
POA

Chester, CH4 8BU

Industrial Unit

To Let
POA

Chester, CH4 8BU

Industrial Unit

To Let
£1473 / month

Oswestry, SY11 4ND

Industrial Unit

To Let
£1907 / month

Oswestry, SY11 4ND

Industrial Unit

To Let
Starting From £800 / month

Whitchurch, SY13 4HD

Industrial Unit

To Let
POA

Deeside, CH5 2LR

Industrial Unit

To Let
POA

Deeside, CH5 2LR

Industrial Unit

To Buy
£495000 Freehold

Oswestry, SY11 2SP

Industrial Unit

To Let
Starting From £2125 / month

Deeside, CH5 2NY

Industrial Unit

To Let
Starting From £2125 / month

Deeside, CH5 2NY

Industrial Unit

To Let
£2292 / month

Croesoswallt, SY10 8NN

Industrial Unit

To Let
Starting From £847 / month

Oswestry, SY11 4JF

Industrial Unit

To Let
POA

Shrewsbury, SY4 5SX

Industrial Unit

To Let
£1200 / month

Tarporley, CW6 0NA

Industrial Unit

To Let
£2333 / month

Nantwich, SY13 4AL

Industrial Unit

To Let
£7205 / month

Whitchurch, SY13 4AL

Industrial Unit

To Let
£1000 / month

Wem, SY4 5JX

Industrial Unit

To Buy
£325000 Freehold

Shrewsbury, SY4 5SD

Industrial Unit

To Let
POA

Shrewsbury, SY4 5SD

Industrial Unit

To Let
POA

Ellesmere Port, CH65 1AE

Industrial Unit

To Let
POA

Ellesmere Port, CH65 1AE

Industrial Unit

To Let
POA

Nantwich, CW5 6LH

Industrial Unit

To Let
POA

Nantwich, CW5 6LH

Industrial Unit

To Let
POA

Nantwich, CW5 6LH

Industrial Unit

To Let
POA

Northwich, CW8 2HB

Industrial Unit

To Let
Starting From £242 / month

Ellesmere Port, CH65 1BR

Industrial Unit

To Let
£120 / month

Frodsham, CW8 2HB

Industrial Unit

To Let
£599 / month

Shrewsbury, SY4 1BP

Industrial Unit

To Let
£2058 / month

Welshpool, SY4 1BP

Industrial Unit

To Let
£1387 / month

Pentre, SY4 1BP

Industrial Unit

To Let
£1387 / month

Pentre, SY4 1BP

Industrial Unit

To Let
£1387 / month

Pentre, SY4 1BP

Industrial Unit

To Let
£1387 / month

Pentre, SY4 1BP

Industrial Unit

To Let
£1430 / month

Pentre, SY4 1BP

Industrial Unit

To Let
£1387 / month

Pentre, SY4 1BP

Industrial Unit

To Let
£953 / month

Pentre, SY4 1BP

Industrial Unit

To Let
£953 / month

Pentre, SY4 1BP

Industrial Unit

To Let
£953 / month

Pentre, SY4 1BP

Industrial Unit

To Let
£2058 / month

Pentre, SY4 1BP

Industrial Unit

To Let
£997 / month

Oswestry, SY4 1BP

Industrial Unit

To Let
£1387 / month

Pentre, SY4 1BP

Industrial Unit

To Let
£1937 / month

Shrewsbury, SY4 1BP

Industrial Unit

To Let
£1937 / month

Shrewsbury, SY4 1BP

Industrial Unit

To Let
£2058 / month

Pentre, SY4 1BP

Industrial Unit

To Let
POA

Wirral, CH62 3QD

Industrial Unit

To Let
POA

Wirral, CH62 3QD

Industrial Unit

To Let
£1329 / month

Clyst Honiton, EX5 2GG

Industrial Unit

To Buy
£425000 Freehold

Hodnet, TF9 3NG

Industrial Unit

To Buy
£170000 Freehold

Market Drayton, TF9 3AG

Industrial Unit

To Buy
£299950 Freehold

Market Drayton, TF9 3AG

Industrial Unit

To Buy
£400000 Freehold

Market Drayton, TF9 3AG

Industrial Unit

To Let
£833 / month

Market Drayton, TF9 3AG

Industrial Unit

To Let
£1146 / month

Market Drayton, TF9 3SJ

Industrial Unit

To Buy
£650000 Freehold

Market Drayton, TF9 1AE

Industrial Unit

To Let
£667 / month

Market Drayton, TF9 3GY

Industrial Unit

To Let
£667 / month

Market Drayton, TF9 3GY

Industrial Unit

To Buy
£1975000 Freehold

Market Drayton, TF9 3FD

Industrial Unit

To Let
POA

Shrewsbury, SY1 3FE

Industrial Unit

To Let
POA

Shrewsbury, SY1 3FE

Industrial Unit

To Let
POA

Shrewsbury, SY1 3FE

Industrial Unit

To Let
POA

Shrewsbury, SY1 3FE

Industrial Unit

To Let
POA

Market Drayton, TF9 2JU

Industrial Unit

To Let
£532 / month

Market Drayton, TF9 2JU

Industrial Unit

To Buy
POA

Shrewsbury, SY1 3AS

Industrial Unit

To Buy
POA

Shrewsbury, SY1 3AS

Industrial Unit

To Buy
£1485000 Freehold

Shrewsbury, SY1 3AS

Industrial Unit

To Buy
POA

Runcorn, WA7 3DU

Industrial Unit

To Let
£1200 / month

Widnes, WA8 8WD

Industrial Unit

To Let
POA

Shrewsbury, SY1 3EG

Industrial Unit

To Let
POA

Runcorn, WA7 1YH

Industrial Unit

To Let
POA

Shrewsbury, SY1 4DP

Industrial Unit

To Let
POA

Runcorn, WA7 1PU

Industrial Unit

To Let
£1000 / month

Runcorn, WA7 1PU

Industrial Unit

To Let
£814 / month

Wirral, CH49 0AB

Industrial Unit

To Let
£593 / month

Wirral, CH49 0AB

Industrial Unit

To Let
£653 / month

Wirral, CH49 0AB

Industrial Unit

To Let
£313 / month

Wirral, CH49 0AB

Industrial Unit

To Let
£1375 / month

Wirral, CH49 0AB

Industrial Unit

To Let
£1125 / month

Widnes, WA8 0NP

Industrial Unit

To Buy
£1195000 Freehold

Market Drayton, TF9 2EJ

Industrial Unit

To Buy
£300000 Freehold

Shrewsbury, SY3 7FA

Industrial Unit

To Let
POA

Poulton, CH41 4JQ

Industrial Unit

To Let
Starting From £5000 / month

Widnes, WA8 0SJ

Industrial Unit

To Let
£5000 / month

Widnes, WA8 0RH

Industrial Unit

To Let
POA

Liverpool, L6 1NA

Industrial Unit

To Let
£3279 / month

Shrewsbury, SY2 6ST

Industrial Unit

To Let
£3038 / month

Shrewsbury, SY2 6ST

Industrial Unit

To Let
£6508 / month

Liverpool, L36 6HY

Industrial Unit

To Let
£4044 / month

Liverpool, L36 6HY

Industrial Unit

To Let
£2917 / month

Liverpool, L5 9YN

Industrial Unit

To Let
£2750 / month

Shrewsbury, SY4 4UD

Industrial Unit