1/3
Industrial Unit

Industrial Unit To Let Cannock

PROPERTY ID: 127268

PROPERTY TYPE

Industrial Unit

STATUS

Available

SIZE

13,154 sq.ft

Key Features

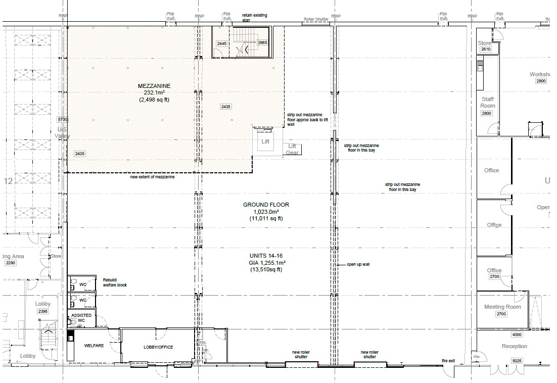
Unit Approx 13,150 sq ft (1,255.1 sq m)
Highly Prominent Location adjacent to M6 Toll
Currently Under Refurbishment
Includes Mezzanine Approx 2,400 sq ft (223 sq m)
EPC Rating Targeted to be C
Available Q4, 2025

Property Details

<p>New roof system, comprising of insulated composite cladding and twin skin rooflights to 10%<br />
Refurbished cladding and curtain walling to main front elevation, with the integration of two new insulated electrically operated loading doors<br />
Open plan unit with painted concrete floors fully redecorated perimeter walls and exposed structural steelwork<br />
Retained mezzanine floor to c.2,000 sq ft, consisting of chipboard floor finish (storage only mezzanine and none fire rated). &nbspMezzanine complete with perimeter handrails, stairs and good lift access (existing lift retained and serviced)<br />
New internal amenity block consisting of entrance foyer, welfare room and accessible washroom, complete with planted plaster wall and ceiling finishes, vinyl flooring and new LED lighting<br />
Main warehouse area with new energy efficient LED lighting throughout warehouse<br />
Rear loading by means of single roller shutter door (intended to be replaced)<br />
3 phase electricity supply. capped gas supply (off common parts system) and mains water</p>

<p>PC Rating Targeted to be C by end of refurbishment. Available Quarter 4, 2025.</p>

About the Agent

Andrew Dixon & Company

See Agent's Other Properties

Industrial Unit To Let

POA

Units 14-16 Lakeside Business Park, Cannock, WS11 0XE
Industrial Unit - Available
13,154 sq ft
1,222 sqm
Show phone number

Enquiry Form

Boxpod will only use your details to send an enquiry to the advertiser and prompt a response. By clicking the Send Enquiry button, you agree to Boxpod's Privacy Policy Please wait for a response. It may take several seconds.

Similar to this property

To Let
POA

Cannock, WS11 0XE

Industrial Unit

To Let
POA

Cannock, WS11 0XT

Industrial Unit

To Let
£3146 / month

Cannock, WS11 0XT

Industrial Unit

To Let
£1900 / month

Cannock, WS11 0JE

Industrial Unit

To Let
£4000 / month

Cannock, WS11 0JE

Industrial Unit

To Let
£2500 / month

Cannock, WS11 0JE

Industrial Unit

To Let
£3800 / month

Cannock, WS11 0JE

Industrial Unit

To Buy
POA

Walsall, WS6 7AJ

Industrial Unit

To Buy
£3250000 Freehold

Great Wyrley, WS6 6BD

Industrial Unit

To Buy
£450000 Freehold

Cannock, WS11 7XT

Industrial Unit

To Buy
£250000 Freehold

Cannock, WS11 7XT

Industrial Unit

To Let
£1167 / month

Cannock, WS11 7XL

Industrial Unit

To Let
£1458 / month

Cannock, WS12 2UZ

Industrial Unit

To Let
£2500 / month

Cannock, WS11 9SS

Industrial Unit

To Let
£1354 / month

Norton Canes, WS11 9NS

Industrial Unit

To Let
£1917 / month

Cannock, WS11 9PU

Industrial Unit

To Let
£1417 / month

Cannock, WS11 9PU

Industrial Unit

To Let
£1778 / month

Norton Canes, WS11 9UU

Industrial Unit

To Let
£2333 / month

Cannock, WS12 4TR

Industrial Unit

To Let
£3458 / month

Hednesford, WS12 1NR

Industrial Unit

To Let
POA

Wolverhampton, WV10 7QZ

Industrial Unit

To Let
POA

Burntwood, WS3 7FU

Industrial Unit

To Let
£4975 / month

Burntwood, WS7 3GJ

Industrial Unit

To Let
POA

Wolverhampton, WV10 7DE

Industrial Unit

To Let
POA

Wolverhampton, WV10 7DB

Industrial Unit

To Buy
POA

Wolverhampton, WV10 7df

Industrial Unit

To Let
POA

Wolverhampton, WV10 7DB

Industrial Unit

To Let
POA

Wolverhampton, WV10 7DB

Industrial Unit

To Let
POA

Wolverhampton, WV10 7DF

Industrial Unit

To Let
POA

Wolverhampton, WV10 7DA

Industrial Unit

To Let
POA

Burntwood, WS7 3JQ

Industrial Unit

To Buy
£375000 Freehold

Walsall, WS3 2QJ

Industrial Unit

To Buy
£430000 Freehold

Bloxwich, WS3 2QJ

Industrial Unit

To Buy
£375000 Freehold

Walsall, WS3 2QJ

Industrial Unit

To Let
£1667 / month

Burntwood, WS7 3XD

Industrial Unit

To Let
£9684 / month

Wolverhampton, WV10 7PH

Industrial Unit

To Let
£2500 / month

Burntwood, WS7 3JG

Industrial Unit

To Let
£2417 / month

Burntwood, WS7 3JG

Industrial Unit

To Let
£1500 / month

Burntwood, WS7 3XD

Industrial Unit

To Let
POA

Burntwood, WS7 3XD

Industrial Unit

To Let
£1833 / month

Burntwood, WS7 3XD

Industrial Unit

To Let
£1667 / month

Burntwood, WS7 3XD

Industrial Unit

To Let
£1667 / month

Burntwood, WS7 3XD

Industrial Unit

To Let
£1667 / month

Burntwood, WS7 3XD

Industrial Unit

To Let
POA

Burntwood, WS7 3XD

Industrial Unit

To Let
£1667 / month

Burntwood, WS7 3XD

Industrial Unit

To Let
POA

Burntwood, WS7 3XD

Industrial Unit

To Let
£1833 / month

Burntwood, WS7 3XD

Industrial Unit

To Let
POA

Walsall, WS3 2XR

Industrial Unit

To Let
POA

West Midlands, WV107EL

Industrial Unit

To Let
POA

Walsall, WS2 7BZ

Industrial Unit

To Let
POA

Walsall, WS2 7BZ

Industrial Unit

To Let
POA

Walsall, WS2 7BZ

Industrial Unit

To Let
POA

Wolverhampton, WV10 6PZ

Industrial Unit

To Let
£1 / month

Wolverhampton, WV10 6PZ

Industrial Unit

To Let
POA

Wolverhampton, WV10 6QJ

Industrial Unit

To Let
POA

Wolverhampton, WV10 9DZ

Industrial Unit

To Let
POA

Walsall, WS9 8SX

Industrial Unit

To Let
POA

Wolverhampton, WV11 3BF

Industrial Unit

To Let
POA

Wolverhampton, WV11 1TB

Industrial Unit

To Let
POA

Wolverhampton, WV11 3RG

Industrial Unit

To Let
POA

Wolverhampton, WV11 3RG

Industrial Unit

To Let
POA

Walsall, WS2 8TF

Industrial Unit

To Let
POA

Walsall, WS9 8UY

Industrial Unit

To Let
POA

Walsall, WS9 8UY

Industrial Unit

To Let
POA

Walsall, WS9 8UQ

Industrial Unit

To Let
POA

Walsall, WS9 8UY

Industrial Unit

To Let
POA

Walsall, WS2 7BD

Industrial Unit

To Let
POA

Walsall, WS2 8DL

Industrial Unit

To Buy
POA

Willenhall, WV13 1DB

Industrial Unit

To Let
POA

Willenhall, WV13 3XB

Industrial Unit

To Let
POA

Wolverhampton, WV10 9TJ

Industrial Unit

To Let
POA

Willenhall, WV13 1NX

Industrial Unit

To Let
POA

Walsall, WS9 8UQ

Industrial Unit

To Let
POA

Walsall, WS9 8UQ

Industrial Unit

To Let
POA

Willenhall, WV13 3SU

Industrial Unit

To Buy
£137000 Freehold

Wolverhampton, WV10 9QA

Industrial Unit

To Let
POA

Willenhall, WV13 3SU

Industrial Unit

To Let
POA

Walsall, WS9 8UQ

Industrial Unit

To Let
POA

Willenhall, WV13 3XA

Industrial Unit

To Let
POA

Walsall, WS9 8ET

Industrial Unit

To Let
POA

Willenhall, WV13 3SW

Industrial Unit

To Let
POA

Walsall, WS9 8ET

Industrial Unit

To Buy
£195000 Freehold

Wolverhampton, WV10 9DX

Industrial Unit

To Let
POA

Willenhall, WV13 3RL

Industrial Unit

To Buy
POA

Aldridge, Walsall, WS9 8BG

Industrial Unit

To Let
POA

Wolverhampton, WV10 9RT

Industrial Unit

To Let
Starting From £1354 / month

Walsall, WS2 0LE

Industrial Unit

To Let
POA

Wolverhampton, WV9 5EW

Industrial Unit

To Let
POA

Wolverhampton, WV13 3LR

Industrial Unit

To Let
POA

Willenhall, WV13 2JW

Industrial Unit

To Let
POA

Willenhall, WV13 2JW

Industrial Unit

To Let
POA

Willenhall, WV13 2JW

Industrial Unit

To Let
POA

Willenhall, WV13 2PZ

Industrial Unit

To Let
POA

Aldridge, Walsall, WS9 8DT

Industrial Unit

To Let
POA

Willenhall, WV13 2PF

Industrial Unit

To Buy
POA

Walsall, WS2 9XX

Industrial Unit

To Buy
POA

Walsall, WS2 9XX

Industrial Unit

To Buy
POA

Walsall, WS2 9XX

Industrial Unit

To Let
POA

Willenhall, WV13 2JW

Industrial Unit