Industrial Unit
Industrial Unit To Let Doncaster
PROPERTY ID: 126812
PROPERTY TYPE
Industrial Unit
STATUS
Available
SIZE
1,291-1,292 sq.ft
Key Features
NEW High quality business units
Adjacent to Doncaster Sheffield Airport
120 m2 (1,291 ft2)
4m roller shutter door
Eaves height: 5.44m,
Ridge height: 8m
Secure site
Visitor & accessible parking & cycle storage
Property Details
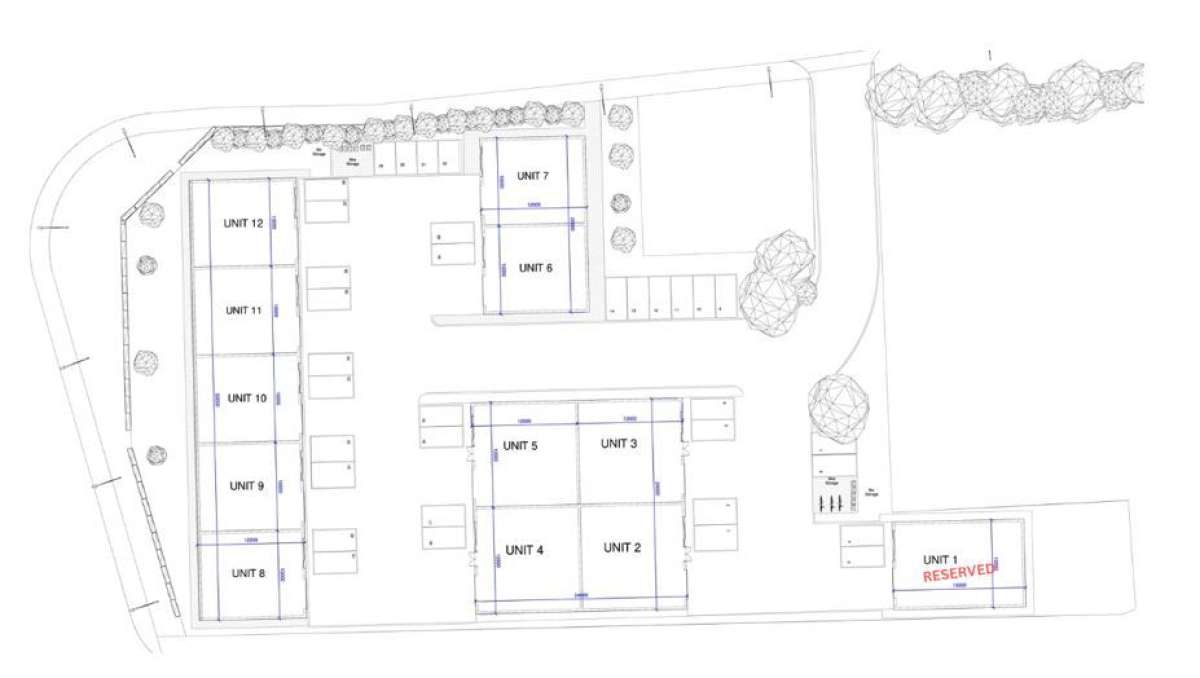
Olympus Business Park Is A Development Of Twelve New High-quality Units Of Duo Steel Frame Construction, With Full Height Factory Finished Steel Cladding Complete With Angled Fascia And Soffits With:-
Roller Shutter Doors
Glazed Front Entrance
Fire Alarm
And Emergency Lighting,
External Led Lighting To The Service Yard
Unit 7
Mezzanine Floor
Full Fibre Broadband.
Security Alarm
Cctv
Note The Solar Panels On The Roof Are Excluded, They Serve The Adjacent Unit
Unit 9
A Shell Ready For Fit Out
About the Agent
Craven Wildsmith Ltd
See Agent's Other PropertiesIndustrial Unit
Starting From £18,000 / pa
£1,500 / month
Unit 7 & 9,Hayfield Lane / First Avenue, Doncaster, DN9 3PL
Industrial Unit -
Available
1,291-1,292 sq ft
120-120 sqm
Show phone number




















































































































